Skip to main content
Sell Your Home
Shortlisted Properties
  • New Homes
  • For Sale
  • For Rent
Danger! Indicates a dangerous or potentially negative action.
Error

Maximum 4 project can be compared at one go.

Last Updated : 6 Days ago
2098 Dufferin Street, Toronto, ON, Caledonia-Fairbank
Photo Gallery
+ 26 Photos

2098 Dufferin Street, Toronto MLS Number: W12451412

Caledonia-Fairbank, Toronto, ON, M6E 3R7

$899,900

Price drop by $48,900

Status: For Sale

  • 3+ Beds
  • 2 Baths
  • Area : 1100-1500 sqft
  • Property Type: Residential Freehold (Detached)
  • Property Taxes : $4215.35 (Tax Year:2025)
  • Listing Courtesy : Property.ca Inc.

2098 Dufferin Street Property Description

Welcome to 2098 Dufferin Street! This beautifully maintained two-storey detached home offers timeless charm and awaits your personal touch. The sun-drenched main floor boasts a spacious living room, a separate dining room, and an eat-in kitchen with a walk-out to an elevated terrace a perfect spot for morning coffee and soaking up the city vibe. Hardwood floors flow throughout LR,DR & upper level. Complemented by three well-appointed bedrooms and a recently renovated four-piece bathroom. A convenient two-piece powder rm` is located on the lower level. The finished basement features a large, inviting recreation room with a sep entrance, ideal for entertaining. Recent updates include a new roof and aluminum in 2020, and new windows in 2021. Enjoy the fully fenced front yard. Located in the heart of the city & conveniently close to Dufferin and Eglinton, the future Eglinton LRT, restaurants, shops, major hwys, and public trans. 2098 Dufferin is ready for you to make it your own.

Read More

2098 Dufferin Street Property Facts

Property Type :Residential Freehold
MLS Number :W12451412
Listing Type :Sale
Possession Date :
know more link icon
Last Updated :30 Jan, 2026 (6 Days ago)
Source :Toronto Regional Real Estate Board
Area :Toronto
Postal Code : M6E 3R7
property detail community link icon

2098 Dufferin Street Property Price & Tax Insights

Price : $899,900
Property Taxes :$4215.35
Tax Year :2025

2098 Dufferin Street, Toronto Property Details

Bedrooms :3 +
No. of Rooms :7
Air Conditioning :Central Air
Heating :Forced Air
Cross Street :Dufferin & Rogers Rd
Bathrooms :2
Fuel :Gas
Approx Square Footage :1100-1500 sqft
Fireplace/Stove :Yes
Virtual Tour
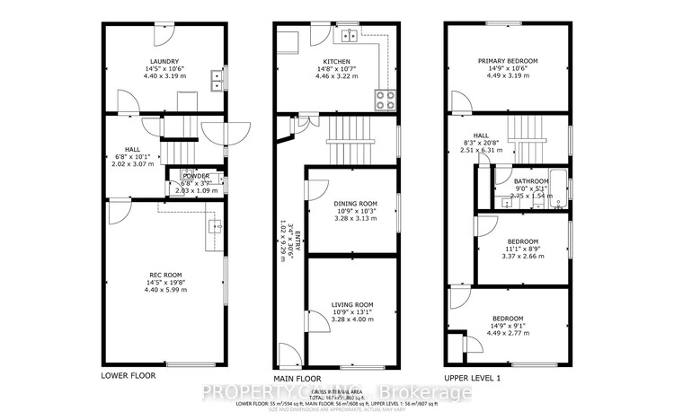
Dimensions 7
Living Room :3.28 m x 4.0 m
Kitchen :4.46 m x 3.22 m
Bedroom 2 :3.37 m x 2.66 m
Recreation :4.4 m x 5.99 m
Dining Room :3.28 m x 3.13 m
Primary Bedroom :4.49 m x 3.19 m
Bedroom 3 :4.49 m x 2.77 m

Exterior Information

Exterior Finish :Brick
Parking Space :2
Basement :Finished
Garage :Detached

2098 Dufferin Street, Toronto - Price History

2025-12

10 Dec, 2025

TREB #W12451412

Price Change

$899900.0

property sold history blur background
View More

Sign in to view full price history of this property

  • 0
  • 400k
  • 800k
  • 1.2M
  • 1.6M
  • 2M+
  • 0
  • 6
  • 12
  • 18
  • 24
  • 30+
  • 0
  • 6
  • 12
  • 18
  • 24
  • 30+

2098 Dufferin Street - Location Map and Landmarks

  • Eglinton West Subway, Toronto 1.56 km
  • Glencairn Subway, Toronto 2.44 km
  • St Clair West Subway, Toronto 2.6 km
  • Lawrence West Subway, Toronto 3.12 km
  • Lansdowne Subway, Toronto 3.22 km
  • Dufferin Subway, Toronto 3.23 km
  • Ossington Subway, Toronto 3.3 km
  • Bloor Train Station, Toronto 3.33 km
  • Bloor Go Station, Toronto 3.43 km
  • Dundas West Subway, Toronto 3.47 km
  • St John Bosco Catholic Elementary School, Toronto 0.28 km
  • D'Arcy Mcgee Catholic Elementary School, Toronto 0.61 km
  • Rawlinson Community School, Toronto 0.73 km
  • Fairbank Middle School, Toronto 0.75 km
  • Fairbank Memorial Community School, Toronto 0.78 km
  • St Thomas Aquinas Catholic Elementary School, Toronto 0.91 km
  • Vaughan Road Academy, Toronto 0.93 km
  • Stella Maris Catholic Elementary School, Toronto 0.93 km
  • F H Miller Junior Public School, Toronto 1.02 km
  • St Clare Catholic Elementary School, Toronto 1.05 km
  • Toronto Rehab Institute - Hillcrest Site, Toronto 2.75 km
  • Runnymede Health Care Centre, Toronto 3.79 km
  • Baycrest Health Sciences, Toronto 4.72 km
  • West Park Hospital, Toronto 4.8 km
  • Krembil Research Institute, Toronto 5.05 km
  • Toronto Western Hospital, Toronto 5.1 km
  • University Health Network - Toronto Western, Toronto 5.12 km
  • Humber River Regional, Toronto 5.21 km
  • St. Joseph's Health Centre, Toronto 5.31 km
  • 80 Workman Way, Toronto 5.47 km
  • Casa Coimbra Grocery, Toronto 0.86 km
  • Don Borreg�n, Toronto 0.86 km
  • No Frills, Toronto 0.9 km
  • Loconte Foods, Toronto 0.99 km
  • Centro Trattoria & Formaggi, Toronto 1.14 km
  • Imperial Fruit Market, Toronto 1.15 km
  • Talho E Salsicharia, Toronto 1.2 km
  • Bees Are Life, Inc. / Ontario Honey House, Toronto 1.21 km
  • Diana Meat & Grocery, Toronto 1.26 km
  • Freddie'S No Frills, Toronto 1.35 km
  • Rogers Road and Dufferin Street, Toronto 0.27 km
  • Hope Street and Dufferin Street, Toronto 0.64 km
  • Oakwood Avenue and Rogers Road, Toronto 0.7 km
  • Vaughan Road and Oakwood Avenue, Toronto 0.75 km
  • Dufferin Street and Eglinton Avenue West, Toronto 0.9 km
  • Eglinton Avenue West and Dufferin Street, Toronto 0.91 km
Last Updated : 79 Days ago
499 Northcliffe Boulevard, Toronto, ON
Price On Request
  • 3 Bd
  • 2 Ba
  • 1100-1500 sq-ft
Distance : 254 metre
Last Updated : 8 Days ago
77 Hatherley Road, Toronto, ON
$1229000.0
  • 3 +1 Bd
  • 3 Ba
  • 1100-1500 sq-ft
Distance : 287 metre
Last Updated : 6 Hours ago
2220 Lakeshore Boulevard, Toronto, ON
Last Updated : 7 Hours ago
101 Peter Street, Toronto, ON
Last Updated : 9 Hours ago
1414 Bayview Avenue, Toronto, ON
Last Updated : 9 Hours ago
3390 WESTON Road, Toronto, ON
Last Updated : 10 Hours ago
500 Wilson Avenue, Toronto, ON
Last Updated : 10 Hours ago
555 Yonge Street, Toronto, ON
Last Updated : 10 Hours ago
30 Meadowglen Place, Toronto, ON
$479000.0
  • 1 +1 Bd
  • 2 Ba
  • 700-799 sq-ft
Last Updated : 11 Hours ago
185 Alberta Avenue, Toronto, ON
Last Updated : 11 Hours ago
50 Grove Avenue, Toronto, ON
$1474000.0
  • 6 Bd
  • 4 Ba
  • 2500-3000 sq-ft
Last Updated : 11 Hours ago
5785 Yonge Street, Toronto, ON
Last Updated : 11 Hours ago
342 Spadina Road, Toronto, ON
$3075000.0
  • 2 +1 Bd
  • 2 Ba
  • 2500-2749 sq-ft
Last Updated : 11 Hours ago
462 & 464 Sammon Avenue, Toronto, ON
Last Updated : 11 Hours ago
505 Richmond Street W, Toronto, ON
Last Updated : 12 Hours ago
16 McAdam Avenue, Toronto, ON
Last Updated :287 Days ago
21 Thornton Avenue, Toronto, ON
$1399900.0
  • 2 Bd
  • 4 Ba
  • 2500-3000 sq-ft
Last Updated :325 Days ago
77 Hatherley Road, Toronto, ON
$1229000.0
  • 1 Bd
  • 3 Ba
  • 2500-3000 sq-ft
Last Updated :266 Days ago
161 Sellers Avenue, Toronto, ON
Last Updated :324 Days ago
6 Carrington Avenue, Toronto, ON
$1300000.0
  • 2 Bd
  • 3 Ba
  • 2500-3000 sq-ft
Last Updated :268 Days ago
420 Harvie Avenue, Toronto, ON
$1499000.0
  • 2 Bd
  • 4 Ba
  • 2500-3000 sq-ft
Recently Viewed

FAQs: 2098 Dufferin Street, Toronto

  • Q:What is the Area Size of the 2098 Dufferin Street In Sq.Ft and it's MLS No.?

    A: The project covers an area of approximately 1100-1500 sq. ft and is strategically located in Toronto. The MLS No of this project is W12451412 and the Project is located in ON, Canada
  • Q: Does this Project 2098 Dufferin Street available for Sale ?

    A: The project 2098 Dufferin Street is readily available for Sale and can be purchased at competitive prices today. You can schedule a tour or request a call back for knowing further.
  • Q: How far is this property from my workplace?

    A:You can calculate your travel time and see how this property is far from your Office, your spouse's workplace or your kid's school. You just need to tell us which places you commute to frequently and Square Yards will tell you how far they are from this property.
  • Q:What are the Key Features 2098 Dufferin Street is Offering?

    A:Square Yards is giving a Cashback of $4,500 if you buy this property from us, however there are several key features offered by the 2098 Dufferin Street. You get 3+ Beds with 2 Bath, central air conditioning, parking space and garage along with a heating system, basement, gas fuel system and balcony.
  • Q:How many Parking Space available in this 2098 Dufferin Street?

    A: 2098 Dufferin Street in Toronto offers a total of 2 parking spaces for residents.
  • Q:How many Beds & Baths available in 2098 Dufferin Street, Toronto?

    A: 2098 Dufferin Street, Toronto comes with 3+ Beds for maximum convenience and space. There are 2 baths available as well for when you have guests over or if you have a large family!
  • Q:How many Apartments and Condos are available for Sale in Toronto, On?

    A:Toronto, ON is one of the biggest real estate markets in Canada. There are several options available here pertaining to condos and apartments alike. There are approximately apartments and condos available currently for your perusal.
Related to your search
Nearby Postal Codes of Toronto

Tell us a Little about yourself!