Skip to main content
Sell Your Home
Shortlisted Properties
  • New Homes
  • For Sale
  • For Rent
Danger! Indicates a dangerous or potentially negative action.
Error

Maximum 4 project can be compared at one go.

Last Updated : 8 Hours ago
11 Cleveland Street, Thorold, ON, 557 - Thorold Downtown
Photo Gallery
+ 32 Photos

11 Cleveland Street, Thorold MLS Number: X12770514

557 - Thorold Downtown, Thorold, Niagara, ON, L2V 3K3

$479,900

Status: For Sale

  • 2+1 Beds
  • 3 Baths
  • Area : 1100-1500 sqft
  • Property Type: Residential Freehold (Detached)
  • Property Taxes : $2969.0 (Tax Year:2025)
  • Listing Courtesy : Re/max Niagara Realty Ltd, Brokerage

11 Cleveland Street Property Description

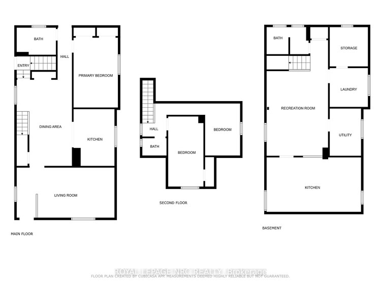
A thoughtfully cared-for property offering excellent value and flexibility, this home presents a rare opportunity for families, multi-generational living, or investment potential. With 2+1 bedrooms and 3 bathrooms, the layout lends itself well to use as a potential duplex or income-generating property. The lower level is accessed through a private side entrance and has been fully finished to include a renovated kitchen with updated counters and sink, fresh paint throughout, a new bedroom, a full recreation room, and a bathroom featuring a walk-in spa shower, making it an ideal in-law suite or rental space. The main floor features a spacious, light-filled kitchen with custom-built cabinetry, apron sink, wall oven, and newer refrigerator, flowing into a large dining area perfect for entertaining, along with an inviting living room highlighted by a large picture window, a main-floor bedroom, and a full bathroom. The upper level offers two additional bedrooms and a 2-piece bath, while bamboo flooring throughout the main level adds a modern and durable finish. Key mechanical upgrades include a new furnace installed in December 2024 and a new hydro panel added in November 2024. Outside, the fully fenced backyard provides privacy and functionality with two sheds, and parking is plentiful with a four-car concrete driveway and a single-car garage equipped with hydro. Ideally located just minutes from schools, Brock University, Niagara College, shopping, public transit, downtown amenities, and a short drive to Niagara Falls, this home has most major updates already completed and is ready for its next chapter!

Read More

11 Cleveland Street Property Facts

Property Type :Residential Freehold
MLS Number :X12770514
Listing Type :Sale
Property Age :100+ Years
Possession Date :
know more link icon
Last Updated :09 Feb, 2026 (8 Hours ago)
Source :Toronto Regional Real Estate Board
Area :Niagara
Postal Code : L2V 3K3
property detail community link icon

11 Cleveland Street Property Price & Tax Insights

Price : $479,900
Property Taxes :$2969.0
Tax Year :2025

11 Cleveland Street, Thorold Property Details

Bedrooms :2 + 1
No. of Rooms :6
Air Conditioning :Central Air
Heating :Forced Air
Cross Street :Richmond and Cleveland
Bathrooms :3
Fuel :Gas
Approx Square Footage :1100-1500 sqft
Fireplace/Stove :No
Dimensions 12
Kitchen :2.56 m x 3.81 m
Dining Room :3.68 m x 6.34 m
Bedroom :2.45 m x 4.63 m
Bedroom :3.06 m x 2.66 m
Utility Room :2.24 m x 2.98 m
Other :2.51 m x 2.69 m
Living Room :4.89 m x 3.3 m
Other :2.24 m x 3.43 m
Primary Bedroom :2.83 m x 4.6 m
Kitchen :2.76 m x 3.76 m
Laundry :2.51 m x 2.58 m
Recreation :4.01 m x 7.65 m

Exterior Information

Exterior Finish :Brick, Vinyl Siding
Parking Space :5
Basement :Finished
Garage :Detached

11 Cleveland Street, Thorold - Price History

2026-02

09 Feb, 2026

TREB #X12770514

Listed

$479900.0

property sold history blur background
View More

Sign in to view full price history of this property

  • 0
  • 400k
  • 800k
  • 1.2M
  • 1.6M
  • 2M+
  • 0
  • 6
  • 12
  • 18
  • 24
  • 30+
  • 0
  • 6
  • 12
  • 18
  • 24
  • 30+

11 Cleveland Street - Location Map and Landmarks

Last Updated : 4 Days ago
35 Sunset Way, Niagara, ON
$629000.0
  • 3 Bd
  • 4 Ba
  • 1100-1500 sq-ft
Last Updated : 10 Days ago
85 Elvira Way, Niagara, ON
$599888.0
  • 3 Bd
  • 3 Ba
  • 1500-2000 sq-ft
Last Updated : 11 Days ago
300 Richmond Street, Niagara, ON
Last Updated : 17 Days ago
154&155 Lot N/A, Niagara, ON
Last Updated : 35 Days ago
25 Andrew Lane, Niagara, ON
$769900.0
  • 2 +1 Bd
  • 3 Ba
  • 1100-1500 sq-ft
Last Updated : 39 Days ago
18 Julie Drive, Niagara, ON
Last Updated : 54 Days ago
51 HARMONY Way, Niagara, ON
$699900.0
  • 3 +0 Bd
  • 3 Ba
  • 1500-2000 sq-ft
Last Updated : 54 Days ago
49 HARMONY Way, Niagara, ON
$699900.0
  • 3 +0 Bd
  • 3 Ba
  • 1500-2000 sq-ft
Last Updated : 61 Days ago
63 HARMONY Way, Niagara, ON
$789900.0
  • 3 +0 Bd
  • 4 Ba
  • 1500-2000 sq-ft
Last Updated : 61 Days ago
61 HARMONY Way, Niagara, ON
$712695.0
  • 3 +0 Bd
  • 3 Ba
  • 1500-2000 sq-ft
Last Updated : 76 Days ago
1970 Decew Road, Niagara, ON
Last Updated : 79 Days ago
1732 Merrittville Highway, Niagara, ON
Last Updated :301 Days ago
16 Sullivan Avenue, Thorold, ON
Last Updated :325 Days ago
49 Pine Street S, Thorold, ON
$599900.0
  • 0 Bd
  • 2 Ba
  • 2500-3000 sq-ft
Last Updated :258 Days ago
6 Munro Street, Thorold, ON
$600000.0
  • 2 Ba
  • 2500-3000 sq-ft
Last Updated :318 Days ago
162 Ryerson Street, Thorold, ON
$624850.0
  • 3 Bd
  • 2 Ba
  • 2500-3000 sq-ft
Last Updated :250 Days ago
61 Patricia Street, Thorold, ON
Last Updated :318 Days ago
160 ELGIN Street, Thorold, ON
$599000.0
  • 1 Bd
  • 2 Ba
  • 2500-3000 sq-ft
Last Updated :312 Days ago
225 Palace Street, Thorold, ON
$749000.0
  • 4 Ba
  • 2500-3000 sq-ft
Last Updated :244 Days ago
9 Pine Street S, Thorold, ON
$459900.0
  • 2 Ba
  • 2500-3000 sq-ft
Last Updated :234 Days ago
25 King Street, Thorold, ON
$499900.0
  • 3 Bd
  • 2 Ba
  • 2500-3000 sq-ft
Last Updated :230 Days ago
251 Palace Street, Thorold, ON
$729000.0
  • 4 Ba
  • 2500-3000 sq-ft
Last Updated :276 Days ago
66 Rose Avenue, Thorold, ON
$524999.0
  • 1 Bd
  • 2 Ba
  • 2500-3000 sq-ft
Last Updated :329 Days ago
13 St Davids Street W, Thorold, ON
Recently Viewed

FAQs: 11 Cleveland Street, Thorold

  • Q:What is the Area Size of the 11 Cleveland Street In Sq.Ft and it's MLS No.?

    A: The project covers an area of approximately 1100-1500 sq. ft and is strategically located in Niagara. The MLS No of this project is X12770514 and the Project is located in ON, Canada
  • Q: Does this Project 11 Cleveland Street available for Sale ?

    A: The project 11 Cleveland Street is readily available for Sale and can be purchased at competitive prices today. You can schedule a tour or request a call back for knowing further.
  • Q: How far is this property from my workplace?

    A:You can calculate your travel time and see how this property is far from your Office, your spouse's workplace or your kid's school. You just need to tell us which places you commute to frequently and Square Yards will tell you how far they are from this property.
  • Q:What are the Key Features 11 Cleveland Street is Offering?

    A:Square Yards is giving a Cashback of $2,400 if you buy this property from us, however there are several key features offered by the 11 Cleveland Street. You get 2+1 Beds with 3 Bath, central air conditioning, parking space and garage along with a heating system, basement, gas fuel system and balcony.
  • Q:How many Parking Space available in this 11 Cleveland Street?

    A: 11 Cleveland Street in Niagara offers a total of 5 parking spaces for residents.
  • Q:How many Beds & Baths available in 11 Cleveland Street, Niagara?

    A: 11 Cleveland Street, Niagara comes with 2+1 Beds for maximum convenience and space. There are 3 baths available as well for when you have guests over or if you have a large family!
  • Q:How many Apartments and Condos are available for Sale in Niagara, On?

    A:Niagara, ON is one of the biggest real estate markets in Canada. There are several options available here pertaining to condos and apartments alike. There are approximately apartments and condos available currently for your perusal.
Related to your search

Tell us a Little about yourself!