Skip to main content
Sell Your Home
Shortlisted Properties
  • New Homes
  • For Sale
  • For Rent
Danger! Indicates a dangerous or potentially negative action.
Error

Maximum 4 project can be compared at one go.

Property Image

125 McDonald Boulevard (Acton) 125 McDonald Blvd, Acton, Halton, Ontario, L7J 2W4

Price On Request
i
The prices displayed are indicative and based on recent updates. Please note that current prices may vary due to market conditions.
  • Residential Icon
    Residential
  • project status
    Project Status : Pre-Construction
  • developer img
    Developer : Frank Heller & Co. Ltd
project size image
Project Size
  • 4 Buildings
  • 109 Units
project size image
Home Types
  • Townhouses
building outline
Property Mix
  • Floor plans coming soon
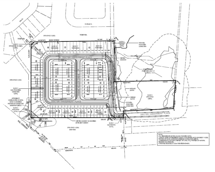
  • 125 McDonald Boulevard (Acton) - Project Description

    Introducing 125 McDonald Boulevard in Acton, a pre-construction residential project featuring a modern townhouse subdivision. This development, located at 125 McDonald Blvd, Acton Halton, consists of 4 buildings and offers a total of 109 units, making it an ideal choice for families and individuals looking for a vibrant community.

    Developed by Frank Heller & Co. Ltd, this project is strategically located near essential amenities, including the Georgetown hospital. Residents will enjoy the charming neighbourhood of Acton, which provides a perfect blend of suburban living and accessibility. Secure your future home in this promising community today!

    125 McDonald Boulevard (Acton) - Total Units

    Total Number of Units 109

    125 McDonald Boulevard (Acton) - Project Attributes

    Max Height (m) 8
    Max Storeys 3
    Building Units 108

    125 McDonald Boulevard (Acton) - Access and Services

    Road Access Municipal Street, Private Right-Of-Way
    Rishi Raj Tiwari
    Sales Representative / Broker
    64X-49X-XXXX

    125 McDonald Boulevard (Acton) - Development Team

    DEVELOPER
    Frank Heller & Co. Ltd
    • Total Projects 1
    • Pre Construction 1
    • Under Construction -
    • Completed -

    125 McDonald Boulevard (Acton) - Location Map and Landmarks

    • Georgetown, Halton 8.64 km

    125 McDonald Boulevard (Acton) - Neighborhood Brief

    Acton, Halton
    Acton, Halton Sitting right above the Niagara Escarpment is the quiet community of Acton in the town of Halton Hills. Located in the Halton Region of Ontario, Canada, it is marked by the Bruce Trail in the south and east and the Guelph train in the south. Also known as "Leathertown" because of its history in leather and tanning, Acton is quite a sought-after location for residential purposes. It is surrounded by conserved forest areas, farmlands, and villages. The Acton community presents residents with a mixed experience of culturally-rich and quiet countryside life.

    Similar Pre-Construction Projects Near by 125 McDonald Boulevard (Acton)

    Mill Street Commons (Georgetown)
    Mill Street Commons (Georgetown) 16-18 Mill St, Georgetown, Halton Hills
    Price On Request
    Pre-Construction
    Ransom Street Townhouses (Acton)
    Ransom Street Townhouses (Acton) 20 Ransom Street, Acton, Halton Hills
    Price On Request
    Pre-Construction
    12-24 Dayfoot Drive Condos (Georgetown)
    12-24 Dayfoot Drive Condos (Georgetown) 12-24 Dayfoot Drive, Georgetown, Halton Hills
    Price On Request
    Pre-Construction

    Buildings Near by 125 McDonald Boulevard (Acton)

    24 Ransom St
    24 Ransom St Acton, Halton
    Disclaimer
    This website ("www.squareyards.ca") is intended solely for informational purposes regarding real estate projects in various locations. Any information provided on this website does not constitute an advertisement or solicitation. Square Yards Real Estate Inc ("The Company") does not guarantee the accuracy of the information or the compliance of the projects. The Company makes every effort to ensure accurate information, however, we are not liable for the consequences of any use or misuse of the site's information. The information on www.squareyards.ca is neither intended to be nor substitute a professional legal, tax, investment or accounting advice. We strongly recommend users to obtain independent legal, tax, investment or accounting advice before acting on any information on this website. The information displayed on www.squareyards.ca is for reference only. Please read our Terms and Conditions for better understanding of our products & offerings and exceptions thereof.
    Tell us a Little about yourself!