Skip to main content
Sell Your Home
Shortlisted Properties
  • New Homes
  • For Sale
  • For Rent
Danger! Indicates a dangerous or potentially negative action.
Error

Maximum 4 project can be compared at one go.

Property Image

1060 Queen's Bush Road 1060 Queen's Bush Rd, Waterloo, Ontario, N0B 2T0

Price On Request
i
The prices displayed are indicative and based on recent updates. Please note that current prices may vary due to market conditions.
  • Residential Icon
    Residential
  • project status
    Project Status : Pre-Construction
  • developer img
    Developer : Bradley & Company Inc
project size image
Project Size
  • 1 Building
  • 12 Units
project size image
Home Types
  • Condos
  • Townhouses
building outline
Property Mix
  • 2 Bed(12)

1060 Queen's Bush Road - Project Description

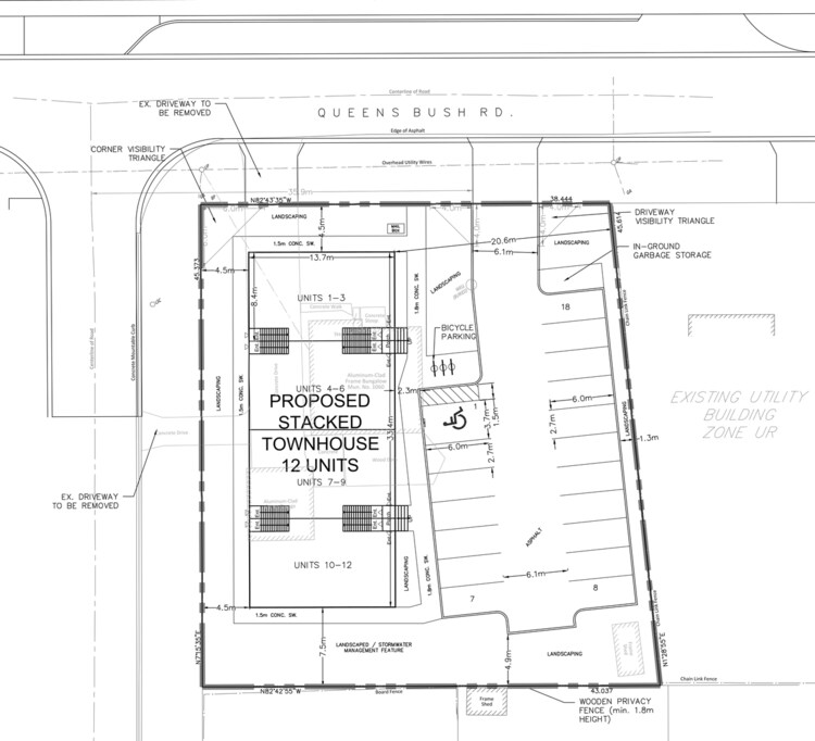
Welcome to 1060 Queen's Bush Road, a promising pre-construction residential project located in the heart of Waterloo. This development features a stylish townhouse and condo design by the renowned Bradley & Company Inc., offering a total of 12 modern residential units. Each unit boasts two bedrooms, perfect for families or young professionals seeking a comfortable living space.

The architectural brilliance of Arcadis ensures that every detail of 1060 Queen's Bush Road meets high standards of quality and design. With only one building in this exclusive community, residents will enjoy a sense of privacy and tranquility. Don't miss the chance to invest in this exciting new project in Waterloo!

1060 Queen's Bush Road - Total Units

2 Bedrooms 12
Total Number of Units 12
Condo Units 12

1060 Queen's Bush Road - Project Attributes

Max Height (m) 9
Max Storeys 2
Building Units 12

1060 Queen's Bush Road - Parking

Total Vehicular Parking 18
Rishi Raj Tiwari
Sales Representative / Broker
64X-49X-XXXX

1060 Queen's Bush Road - Development Team

DEVELOPER
Bradley & Company Inc
  • Total Projects 1
  • Pre Construction 1
  • Under Construction -
  • Completed -
ARCHITECT
Arcadis
  • Total Projects 335
  • Pre Construction 197
  • Under Construction 70
  • Completed 68

1060 Queen's Bush Road - Location Map and Landmarks

Buildings Near by 1060 Queen's Bush Road

Disclaimer
This website ("www.squareyards.ca") is intended solely for informational purposes regarding real estate projects in various locations. Any information provided on this website does not constitute an advertisement or solicitation. Square Yards Real Estate Inc ("The Company") does not guarantee the accuracy of the information or the compliance of the projects. The Company makes every effort to ensure accurate information, however, we are not liable for the consequences of any use or misuse of the site's information. The information on www.squareyards.ca is neither intended to be nor substitute a professional legal, tax, investment or accounting advice. We strongly recommend users to obtain independent legal, tax, investment or accounting advice before acting on any information on this website. The information displayed on www.squareyards.ca is for reference only. Please read our Terms and Conditions for better understanding of our products & offerings and exceptions thereof.
Tell us a Little about yourself!